Declinare de responsabilitate: Imaginile produselor prezentate pe site reprezintă randări digitale cu caracter orientativ. Aspectul produsului final poate diferi de reprezentarea digitală. Vă rugăm să consultați descrierea fiecărui produs pentru detalii exacte privind materialele și dimensiunile.
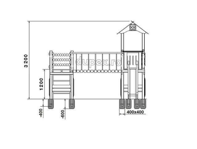
Produsul Complex de Joaca CJ.18 este confectionat din lemn.
Toboganul este confectionat din PAFS (poliesteri armati cu fibra din sticla). Are rezistenta indelungata la razele UV si rezistenta mecanica ridicata. Cu forme curbe si luciu ridicat, permite alunecarea cu usurinta.
| Dimensiuni echipament |
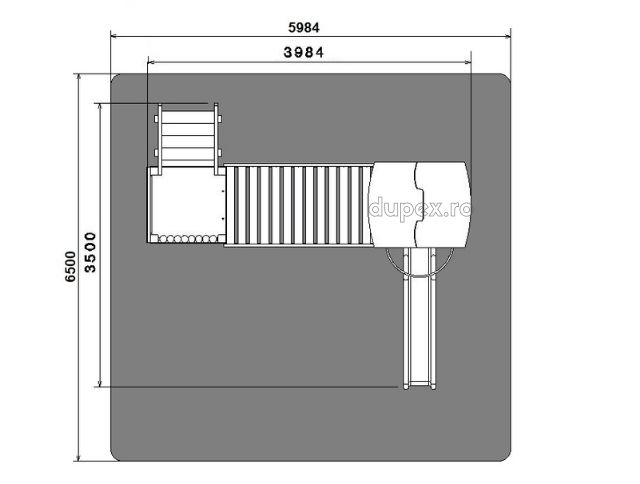
L x I = 3984 x 3500 mm, H = 3200 mm. |
|---|---|
| Dimensiuni spatiu de siguranta |
L x I = 5984 x 6500 mm. |
| Structura |
Lemn. |
Componente |
1 tobogan din fibra de sticla (PAFS), 1 socotitoare, 1 joc X/O, o platforma si un pod mobil. |
| Spatiu de cadere |
Strat cauciuc cu grosime 20-50 mm sau pietris cu granulatia 2-8 mm cu grosimea de 200 mm (se achizitioneaza separat). |
| Grupa de varsta |
4-14 ani. |
| Garantie |
2 ani. |
| Durata medie de viata |
10 ani. |
| Certificari |
SR-EN 1176; SR-EN ISO 9001/2008; SR-EN ISO 14001/2004; SR OHSAS 18001/2007; CNCIR CERT; TUV AUSTRIA. |
| Documente |
Factura fiscala, proces verbal predare-primire, declaratie de conformitate cu EN 1176, certificat de garantie, manual de utilizare si intretinere. |
| Instalare |
Dupex este autorizat pentru a efectua servicii de instalare a echipamentelor de joaca. |
| Livrare |
Se asigura cu autovehicule proprii speciale. |









